Floorplan of Upbrooks, Clitheroe, BB7 1PL Floorplan of Upbrooks, Clitheroe, BB7 1PL
EPC Graph

Upbrooks, Clitheroe, BB7

4 Bed Building Plot - £295,000

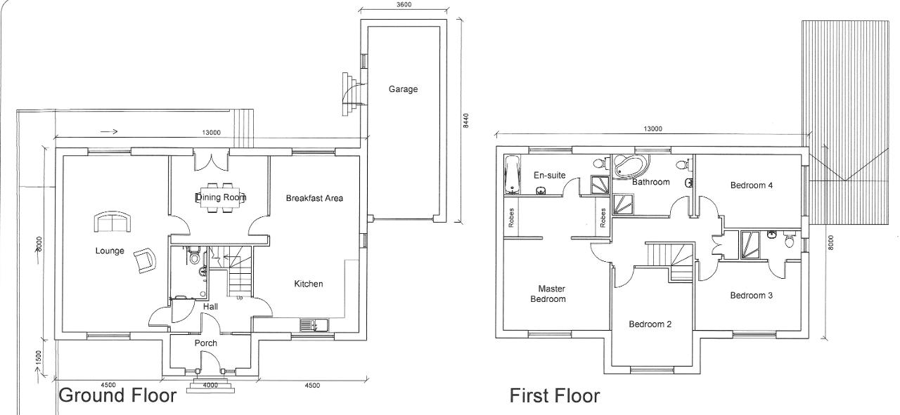
A fantastic opportunity to acquire this building plot which has planning permission granted for two detached family houses both with driveways, garages and gardens. House 1 is the larger of the two with a large lounge, separate dining room and open-plan dining kitchen. Upstairs there are 4 bedrooms with the master having a dressing room and en-suite. House 2 has a front to back lounge, a large living dining kitchen plus 4 bedrooms and 2 bathrooms.

The project has already been started, the existed building has been demolished and the site is now clear and ready. The planning permission was granted in March 2021 and all the plans can be viewed on the Ribble Valley Borough Council planning website using the planning reference 3/2019/1103


  • Fantastic development opportunity
  • Project started and application is live
  • Attractive location close to the brook
  • House 1 approx. 2,100 Sq Ft (195m2)
  • Two 4-bedroom detached houses
  • Both houses have a drive and garage
  • Exciting manageable small scheme
  • House 2 approx. 1,880 Sq ft (175m2)

Room details Request viewing

Ground Floor

Additional Information: By law, we are required to conduct anti-money laundering checks on all potential buyers and sellers, and we take this responsibility very seriously. In line with HMRC guidelines, our trusted partner, Coadjute, will securely manage these checks on our behalf. Once an offer is accepted (subject to contract), Coadjute will send a secure link for you to complete the biometric checks electronically. A non-refundable fee of £27 + VAT per person will apply for these checks, and Coadjute will handle the payment for this service. These anti-money laundering checks must be completed before we can send the memorandum of sale to the solicitors to confirm the sale. Please contact the office if you have any questions in relation to this.